金属硬密封球阀Q41H
时间:2022/11/21
产品详情
Q41H金属硬密封球阀是我公司开发的高性能球阀产品。阀座采用板簧加载的金属密封结构,在高温下启闭轻松。球体及阀座采用特殊硬化处理,密封面不擦伤。手动硬密封球阀具有双向密封功能。主要用途:金属硬密工作温度-29~425℃(碳钢)或-40~550℃(不锈钢)的各种管路上,用于截断或接通管路中的介质,选用不同的材质,金属硬密封球阀可分别适用于水、蒸汽、油品、硝酸、醋酸、氧化性介质、尿素等多种介质。
金属硬密封球阀 产品特点
1、先进的阀座:聚多年球阀制造经验而设计的阀座,确保阀门密封,磨擦系数低,操作力矩小、多种阀座材料、适应范围广。
2、开关无误的手柄:采用扁头阀杆,与手柄的连接不会错位,从而保证手柄指示的开关状态与阀一致辞。
3、锁紧装置:为防止阀门开关误操作,在阀门全开、全关位置有锁定孔,确保阀门处于正确的位置。
4、阀杆防飞结构:阀杆为下装式,防止受压飞出,同时可在火灾后,与阀体形成金属接触,确保阀杆密封。
金属硬密封球阀 产品特点
1、先进的阀座:聚多年球阀制造经验而设计的阀座,确保阀门密封,磨擦系数低,操作力矩小、多种阀座材料、适应范围广。
2、开关无误的手柄:采用扁头阀杆,与手柄的连接不会错位,从而保证手柄指示的开关状态与阀一致辞。
3、锁紧装置:为防止阀门开关误操作,在阀门全开、全关位置有锁定孔,确保阀门处于正确的位置。
4、阀杆防飞结构:阀杆为下装式,防止受压飞出,同时可在火灾后,与阀体形成金属接触,确保阀杆密封。
金属硬密封球阀
|
设计制造标准
|
GB/T 21385-2008
|
|
结构长度标准
|
B/T 12221-2005
|
|
连接法兰标准
|
GB/T 9113、ANSI B16.5、JB/T74~90、GB9112~9131、HG20615~20635、SH3406
|
|
压力温度等级
|
GB/T 12224-2005
|
|
试验检验标准
|
GB/T 13927-2008
|
金属硬密封球阀 性能规范
|
压力等级
|
公称压力
|
磅级
|
||||||||
|
1.6
|
2.5
|
4.0
|
6.4
|
10.0
|
150
|
300
|
400
|
600
|
||
|
试验压力
|
壳体试验
|
2.4
|
3.75
|
6.0
|
9.6
|
15.0
|
3.03
|
7.5
|
10.2
|
15.0
|
|
密封试验
|
1.76
|
2.75
|
4.4
|
7.04
|
11.0
|
2.2
|
5.5
|
7.48
|
11.0
|
|
|
适用工况
|
适用介质
|
纸浆、浆料、粉尘及各种固体颗粒介质
|
||||||||
|
适用温度
|
-196~≤550℃
|
|||||||||
|
适用规范
|
设计制造按
|
GB12237-89 API60 JP17S-48
|
||||||||
|
法兰尺寸按
|
JB79-59、GB91133、HG20592-97 ANSI B16.5 JIS B2212-2214
|
|||||||||
|
结构长度按
|
GB12221-89 ANSI B16.0 JIS B2002
|
|||||||||
|
检验试验按
|
JB/T9092-99 API598
|
|||||||||
金属硬密封球阀 主要零件材料
|
序号
|
零件名称
|
材质
|
序号
|
零件名称
|
材质
|
||
|
GB(国标)
|
ASTM(美标)
|
GB(国标)
|
ASTM(美标)
|
||||
|
1
|
阀体
|
WCB
|
A216-WCB
|
8
|
弹簧
|
60Si2Mn
|
AISI 9260
|
|
2
|
密封圈
|
柔性石墨
|
柔性石墨
|
9
|
垫片
|
柔性石墨+不锈钢
|
B12.10-304/F.G
|
|
3
|
阀座
|
1Cr18Ni9Ti
|
304
|
10
|
填料
|
柔性石墨
|
柔性石墨
|
|
4
|
球体
|
1Cr13
|
A276-420
|
11
|
填料压盖
|
WCB
|
A216-WCB
|
|
5
|
螺母
|
35
|
A194-2H
|
12
|
挡圈
|
65Mn
|
AISI 1066
|
|
6
|
螺柱
|
35CrMoA
|
A193-B7
|
13
|
阀杆
|
1Cr13
|
A276-410
|
|
7
|
座垫
|
1Cr18Ni9Ti
|
304
|
14
|
螺钉
|
35
|
A193-B7
|

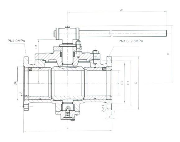
金属硬密封球阀 主要外形尺寸
PN1.6MPa外形尺寸
|
公称通径DN
|
15
|
20
|
25
|
32
|
40
|
50
|
65
|
80
|
100
|
125
|
150
|
200
|
|
L
|
130
|
140
|
150
|
165
|
180
|
200
|
220
|
250
|
280
|
320
|
360
|
400
|
|
H
|
59
|
63
|
75
|
85
|
95
|
107
|
142
|
152
|
178
|
252
|
272
|
342
|
|
W
|
130
|
130
|
160
|
180
|
230
|
230
|
400
|
400
|
650
|
1050
|
1050
|
1410
|
|
D、D1、D2
|
参照******标准:GB/T9113、JB/T79、HG20594等相应标准执行生产
|
|||||||||||
|
Wt(Kg)
|
2.5
|
3
|
5
|
6
|
7
|
10
|
15
|
19
|
33
|
58
|
93
|
160
|
|
法兰连接尺寸
|
GB/T9113、JB/T79、HG/T20594
|
|||||||||||
PN2.5MPa外形尺寸
|
公称通径DN
|
15
|
20
|
25
|
32
|
40
|
50
|
65
|
80
|
100
|
125
|
150
|
200
|
|
L
|
130
|
140
|
150
|
165
|
180
|
200
|
220
|
250
|
320
|
400
|
400
|
550
|
|
H
|
59
|
63
|
75
|
97
|
107
|
142
|
152
|
178
|
252
|
272
|
342
|
345
|
|
W
|
130
|
130
|
160
|
230
|
230
|
400
|
400
|
700
|
1100
|
1100
|
1500
|
1500
|
|
Wt(Kg)
|
2.5
|
3
|
5
|
6
|
7.5
|
10
|
15
|
20
|
33
|
60
|
93
|
175
|
|
法兰连接尺寸
|
GB/T9113、JB/T79、HG/T20594
|
|||||||||||
PN4.0MPa外形尺寸
|
公称通径DN
|
15
|
20
|
25
|
32
|
40
|
50
|
65
|
80
|
100
|
125
|
150
|
200
|
|
L
|
130
|
140
|
150
|
180
|
200
|
220
|
250
|
280
|
320
|
400
|
400
|
400
|
|
H
|
59
|
63
|
75
|
85
|
95
|
107
|
142
|
152
|
178
|
252
|
272
|
342
|
|
W
|
130
|
130
|
160
|
230
|
230
|
400
|
400
|
700
|
1100
|
1100
|
1500
|
1500
|
|
Wt(Kg)
|
3
|
4
|
5
|
7
|
9
|
12
|
18
|
28
|
46
|
75
|
106
|
190
|
|
法兰连接尺寸
|
GB/T9113、JB/T79、HG/T20594
|
|||||||||||
PN6.4MPa外形尺寸
|
公称通径DN
|
15
|
20
|
25
|
32
|
40
|
50
|
65
|
80
|
100
|
125
|
150
|
200
|
|
L
|
165
|
190
|
216
|
229
|
241
|
292
|
330
|
356
|
432
|
508
|
559
|
660
|
|
H
|
59
|
63
|
75
|
97
|
107
|
142
|
152
|
178
|
252
|
272
|
305
|
398
|
|
W
|
130
|
130
|
160
|
230
|
230
|
400
|
400
|
700
|
1100
|
1100
|
1500
|
1800
|
|
Wt(Kg)
|
6.5
|
7
|
8
|
12
|
14
|
18
|
28
|
40
|
65
|
98
|
140
|
250
|
|
法兰连接尺寸
|
GB/T9113、JB/T79、HG/T20594
|
|||||||||||

